Welcome to this sky-high residence, bathed in natural light and far-reaching views across the airport and Botany Bay. Positioned on Level 30 of the sought-after Hyde Park Towers, this apartment offers an exceptional blend of space and convenience. Whether youre looking to downsize into a home with stunning afternoon outlooks or seeking a vibrant CBD lifestyle, this is an opportunity not to be missed.
Defining features:
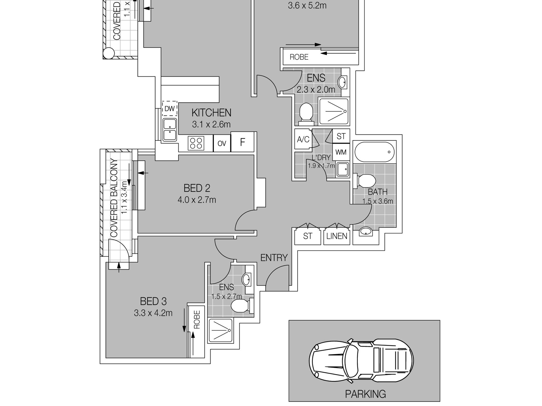
- Updated 3-bedroom apartment with south and west aspect
- Hybrid timber flooring throughout the entire apartment
- Open plan living and dining area with access to two balconies
- Stone-topped kitchen with stainless steel appliances
- Grand master bedroom with ensuite and balcony access
- Second and third bedrooms share private balcony access
- Ducted air-con, internal laundry and one secure car space
- Residents' facilities include pool, gym, spa, sauna, steam room
- Secure building, intercom entry, 24-hr concierge & security
- 290m to World Square precinct, 190m to Museum Station
- Well served by many renowned schools and local amenities
On behalf of the team at Boutique Property Agents and the owners of Apartment 3003 Hyde Park Towers, we look forward to welcoming you at one of our inspections. Alternatively, please contact Veronika on 0401 808 199 or Tolga on 0410 888 939 to arrange a private inspection.
Disclaimer: All information contained herewith, have been obtained from sources we believe to be reliable; however, we cannot guarantee its accuracy. The information contained herewith should not be relied upon and you should make your own enquiries and seek advice in respect of this property or any property on this website.
Features
- Air Conditioning
- Balcony
- Secure Parking
- Built-in Wardrobes
- Gym
- Intercom
- Dishwasher
- Floorboards































